|
Designação: Subestação 60-15 kV na Refinaria de Luanda Ano: 2009 Local: Luanda, Angola Cliente: EFACEC Angola
Área de Intervenção: Projecto de Arquitectura Projecto de Estabilidade e Fundações Projecto de Águas Pluviais
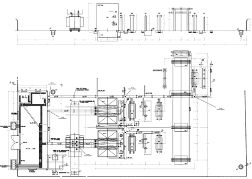
Descrição: Subestação 60-15 kV na Refinaria de Luanda, em Angola, propriedade da Sonangol, com uma área de implantação de 1100 m2, integrada no projecto "Shut Down 2009". Os trabalhos insidiram no projecto de arquitectura e estabilidade estrutural de dois postos de transformação e das fundações e estruturas de suporte em betão armado de todo o complexo de forma a receber os equipamentos por parte da EFACEC Angola. No projecto foram tidos em conta diversos apoios de reacção para movimentação de dois transformadores com peso unitário de 36000 Kg, paredes corta-fogo e 15 tipos diversos de estruturas e fundações de suporte aos equipamentos. Fez ainda parte dos trabalhos o sistema de drenagem de águas pluviais das caleiras de passagem de cablagem do compexo.


|
 |